top of page
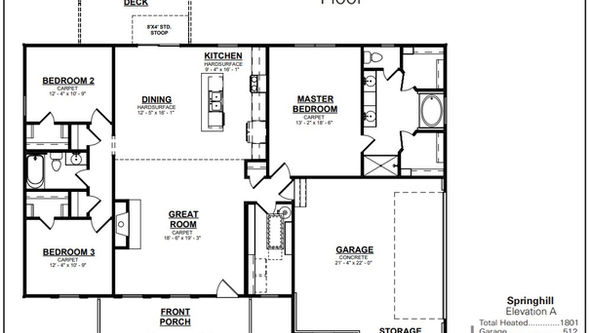
the Springhill 1801
Appreciate all the comforts of a home built just for you at just the right size. Come together in the lively center of this home featuring a kitchen open to the dining and living rooms. Then enjoy privacy in the master suite separate from the other 2 bedrooms. Everything you want is here in this perfect gem.
bottom of page





